Дома под ключ в Ростове-на-Дону
Отзывы из Яндекс Карт
4.9
90 отзывов
Дополнительные услуги 88%
2 154 оценок
Комплектации 89%
1 535 оценок
Планировки 90%
2 484 оценок
Проекты 93%
2 231 оценок
С
Алина Климова11.05.2026 г.
Крыльцо сначала сделали не очень широким, показалось в проекте нормальным. На месте попросили переделать, расширить. Сделали, доплата вышла минимальная, учли уже готовые материалы.
С
Алина Казанцева01.04.2026 г.
Посмотрела на сайте готовые решения, влюбилась в дом с бассейном под ключ. Долго копили, потом рискнули. Сейчас живём в доме 12х13 с гаражом и панорамным окном, бассейн - бомба, дети счастливы.
С
Олеся19.03.2026 г.
Строили не большой дом, 6х6, для летнего проживания. Хотели с минимальными вложениями. Предложили вариант эконом-класса, но с утеплением, чтобы можно было и в межсезонье приехать. Всё устроило, своей цели достигли.
С
Милана27.01.2026 г.
Увидела у них готовый проект с цокольным этажом и террасой. Показалось дороговато, но когда посчитала поэтапно — скидку дали хорошую. Строительство шло без конфликтов.
С
Лидия Т.16.03.2025 г.
Бригада работала слаженно и аккуратно, после себя участок убрали, мусор вывезли, оставили только приятные эмоции и прекрасную баню, которая уже пережила первую зиму и показала себя великолепно.
Отзывы из Google Карт
4.8
54 отзывов
Дополнительные услуги 88%
2 154 оценок
Комплектации 89%
1 535 оценок
Планировки 90%
2 484 оценок
Проекты 93%
2 231 оценок
С
Милана Краснова26.02.2026 г.
Ох и намучилась я с выбором подрядчика, но «БрусДома» меня приятно удивили — на объект приехали с инструментом и материалами без задержек, дом 6х8 с балконом и беседкой получился как на картинке, правда наличники на окнах немного криво прибили, заметила у
С
Виталик Ушаков20.04.2025 г.
Огромное спасибо за мою новую баню. Строители работали аккуратно и ответственно, всегда советовались со мной по ключевым моментам. Результат превзошёл все ожидания, качество на высоте.
Отзывы из 2гис
4.9
42 отзывов
Дополнительные услуги 88%
2 154 оценок
Комплектации 89%
1 535 оценок
Планировки 90%
2 484 оценок
Проекты 93%
2 231 оценок
С
Ваня Власов17.06.2025 г.
Огромная благодарность всей команде Брус дома за наш новый каркасный дом. С момента обращения и до сдачи объекта чувствовалась ответственность и искреннее желание сделать по-настоящему крутой проект. Все этапы, от заливки фундамента до внутренней отделки, контролировались лично прорабом, который всегда был на связи. Дом получился теплым, уютным и невероятно красивым.


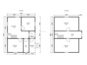
Проект №35 Дом 7х9

каркас из строганой доски
Создайте свой план для этого проекта
и отправьте его нам на расчет в один клик.
Каркасный дом (150 мм) 7х9 Толщина утепления 150 мм 3100500 Заказать
Каркасный дом (200 мм) 7х9 Толщина утепления 200 мм 3370500 Заказать

Доставка включена в стоимость дома!

Воспользуйтесь нашим планировщиком, чтобы получить свою уникальную планировку.

С помощью планировщика можно сделать планы, схемы, эскизы, чертежи вашего будущего дома с мансардой, эркером, с несколькими спальнями. В конечном итоге вы получите проект с качественной планировкой, стопроцентно отвечающий вашим запросам.

При заказе строительства дома можно выбрать нужный вид крыши: двускатная, четырехскатная и вальмовая. Двухскатную крышу считают особенно популярной у малометражных построек.

Самые востребованные размеры на текущий момент: мини - до 50м2 (чаще всего, 1 этажные); компактные - от 70 до 100 квадратных метров (обычно двухэтажные); большие дома - начиная от 150 квадратных метров и больше.

Можем предложить дуплексы - большие каркасные постройки с 2-мя входами на несколько семей. Дома предполагаются для нескольких хозяев и разделены на две половины, для обоих половин - свой отдельный вход.


Наши работы

Перейти в галерею


Комплектация

Площадь застройки: 63 м2
Длина: 7 м
Ширина: 9 м
Общая площадь: 106.56 м2
Исполнение Под ключ (с отделкой)
Фундамент Свайно-винтовой или ж/б сваи (рассчитываются отдельно).
Гидроизоляция фундамента Рубероид в два слоя.
Основание (обвязка) Из обрезного бруса 150х150 мм. 150х200 мм. согласно выбранной толщине утепления. Торцевая доска строганая 45х145/45х195+/-5 мм. согласно выбранной толщине утепления. Обработка антисептиком.
Цокольное перекрытие Строганая доска камерной сушки 45х145/45х195+/-5 мм. с шагом 590 мм. Обработка антисептиком.
Пол черновой Обрезная доска камерной сушки 20х100 мм.
Влаго-ветрозащита чернового пола Мембрана Ондутис А100.
Внешние стены Стойки каркаса из строганой доски камерной сушки 45х145/45х195+/-5 мм. с шагом 590 мм. Верхняя двойная и нижняя обвязки из строганой доски камерной сушки 45х145/45х195+/-5 мм. Разгрузочный ригель из строганой доски 45х145+/-5 мм. Укосины из строганой доски 20х95 мм.
Перегородки Стойки каркаса из строганой доски камерной сушки 45х95+/-5 мм. с шагом 590 мм. Верхняя двойная и нижняя обвязки из строганой доски 45х95+/-5 мм. Разгрузочный ригель из строганой доски камерной сушки 45х145+/-5 мм. Укосины из строганой доски камерной сушки 20х95 мм.
Сборка каркаса На гвозди.
Высота от пола до потолка Дом одноэтажный: 2,5 м. Дом с мансардой: 1-ый этаж- 2,5 м.
2-ой этаж (мансарда)- 2,3 м.
Дом в полтора и два этажа:
1-ый этаж 2,5 м.
2-ой этаж 2,4 м. в полутораэтажном доме
2,5 м. в двухэтажном доме.
Внешняя отделка стен Имитация бруса камерной сушки, сорт АВ, толщиной 17 мм. Монтаж через строганый брусок камерной сушки 45х45+/-5 мм. (вентилируемый фасад). Влаго-ветрозащитная мембрана- Ондутис А100.
Внутренняя отделка стен, перегородок Евровагонка камерной сушки, сорт АВ, толщиной 12,5 мм. по строганой рейке 20х40+/-5 мм. либо ГКЛ 12,5 мм.
Отделка потолка Евровагонка камерной сушки, сорт АВ толщиной, 12,5 мм. по строганой рейке 20х40+/-5 мм. либо ГКЛ 12,5 мм.
Пол чистовой Шпунтованная доска камерной сушки толщиной 35-36 мм. сорт АВ. по строганой рейке 20х40+/-5 мм. либо шпунтованная ДСП 16 мм. по разряженной обрешётке из строганой доски камерной сушки 20х95+/-5 мм.
Утепление (пол, потолок) Минеральная вата Knauf 150/200 мм. согласно выбранной толщине утепления.
Утепление стен Плитный утеплитель Rockwool, толщиной 150/200 мм. согласно выбранной толщине утепления.
Звукоизоляция перегородок Плитный утеплитель Rockwool, толщиной 100 мм.
Пароизоляция (стены, перегородки, пол, потолок) Плёнка Ондутис R70. Дополнительная герметизация нахлёстов/примыканий пароизоляционной плёнки клейкой лентой Delta.
Окна Двухкамерные стеклопакеты ПВХ белого цвета, профиль 60 мм. В комплекте: отливы, подоконники, москитные сетки.
Двери Входная- металлическая, утеплённая (Россия). Межкомнатные- филёнчатые.
Наличники на окна и двери Наличник деревянный, строганый, камерной сушки 70-90 мм. с двух сторон.
Лестница (при наличии второго этажа) Деревянная, одно или двухмаршевая. Перила- заводские резные, балясины- заводские точеные, устанавливаются стартовые точёные столбы. Ступени 40х200 мм. Тетива лестницы- 90х140 мм.
Крыша Двускатная, ломаная или вальмовая в соответствии с проектом.
Стропильная система Выполнена из строганой доски камерной сушки 45х145/45х195+/-5 мм. Шаг установки стропил 590 мм.
Обрешётка Выполняется из строганой доски камерной сушки толщиной 20х95+/-5 мм. Шаг крепления обрешетки 350 мм. Контробрешётка выполняется из строганого бруска камерной сушки 45х45+/-5 мм. Крепится по стропилам (вентиляционный зазор).
Подкровельная мембрана Ондутис А100
Кровельное покрытие (на выбор) Металлочерепица 0,45 мм. Цвет на выбор.
Фронтоны (при наличии) Каркас из строганой доски камерной сушки 45х145/45х195+/-5 мм. Обшиваются имитацией бруса камерной сушки, сорт АВ, толщиной 17 мм. Монтаж через строганый брусок камерной сушки 45х45+/-5 мм. (вентилируемый фасад). Влаго-ветрозащитная мембрана- Ондутис А100. Монтаж вентиляционных решёток.
Свесы крыши Ширина 400 мм. Подшиваются вагонкой камерной сушки, сорт АВ.
Терраса/балкон (при наличии) Устанавливаются опорные столбы из строганного бруса камерной сушки 140х140 мм.
Отделка потолка террасы/балкона Евровагонка камерной сушки толщиной 12,5 мм. сорт АВ.
Пол террасы/балкона Шпунтованная доска камерной сушки толщиной 35-36 мм. сорт АВ.
Ограждение террасы/балкона Перила- строганая доска. Балясины- точеные, фигурные. Либо ограждение в скандинавском стиле. Устанавливаются ступени у входа.
Допуск на геометрические параметры Составляет +/- 50 мм по длине с каждой стороны.
Допускается стыковка имитации бруса, вагонки и половой доски По всему периметру стен дома (если ширина и длина дома более 6,0 метров). Вагонки и доски пола в каждой отдельной комнате.
Допуски по имитации бруса, вагонке, доске +/- 5 мм.
В стоимость включена Доставка комплекта материала в радиусе 500 км. от г. Пестова Новгородской области и сборка дома на вашем участке.
Гарантия 5 лет.
Бытовка строительная 2,0х3,0 м. каркасно-щитовая. Стоимость 23000 руб. Остаётся на участке Заказчика.
Туалет 1,0х1,0 м. каркасно-щитовой. Стоимость 12000 руб. Остаётся на участке Заказчика.
Генератор Стоимость аренды на весь срок строительства 15000 руб. ГСМ за счёт Заказчика.

Строительство домов выполняется в нескольких видах: под усадку, когда сруб отстаивается в течение определенного времени и сразу под ключ.

В зимнее время лучше строить дома в мороз, чтобы каркас не отсырел, в летний сезон - не под дождем.

Оптимальными для дачи или сада стали дома на винтовых сваях, в нашем онлайн-каталоге вы увидите одноэтажные и полуторатажные дома.

Если дом будет строиться для проживания круглый год, предлагаем теплые коттеджи и дома на плитном и ленточном фундаменте.

Существует два вида утепления: 200 мм и 150 мм. Каркасные дома с толщиной стен 200 мм получаются теплее, но стоят дороже.

Дополнительные услуги


Каркасник , согласно чертежу 35 полутораэтажный с теплоизоляционной двускатной верхней конструкцией здания, запоминается экологической безопасностью, в связи с использованием стружечных плит, ваты минеральной и базальтовой, что создает замечательную защиту от холода, оптимальный микроклимат в помещении. Размеры жилища составляют 7х9 м., общая жилая площадь - 106.56 кв.м.. Наша организация в минимальные сроки создаст для вас каркасный дом по индивидуальному или типовому проекту в Ростове-на-Дону в любое время года и на любом виде грунта.

Популярные проекты


Каркасные дома с террасой Каркасные дома с верандой Каркасные дома 8х8
хит продаж
Тип: с балконом, с большой террасой
Общая площадь: 2
3056000
от 2910500
хит продаж
Тип:
Общая площадь: 2
2898500
от 2760500
хит продаж
Тип: с большой террасой
Общая площадь: 2
2604500
от 2480500
Дома из бруса

Заказать или задать вопрос



Заказать или задать вопрос

Заказать звонок