Дома под ключ в Ростове-на-Дону
Отзывы из Яндекс Карт
4.9
95 отзывов
Дополнительные услуги 88%
2 154 оценок
Комплектации 89%
1 535 оценок
Планировки 90%
2 484 оценок
Проекты 93%
2 231 оценок
С
Леся Архипова24.05.2025 г.
Я ценю в работе ответственность и пунктуальность, и ваша компания блестяще проявила эти качества. Все было сделано в оговоренные сроки, материалы привезли как договаривались, а результат превзошел все мои ожидания. Дом великолепен.
Отзывы из Google Карт
4.8
57 отзывов
Дополнительные услуги 88%
2 154 оценок
Комплектации 89%
1 535 оценок
Планировки 90%
2 484 оценок
Проекты 93%
2 231 оценок
С
Венедикт Чесноков22.03.2025 г.
Проект моей бани был нестандартным, с большой панорамной окон, но архитекторы компании грамотно все просчитали, а монтажники воплотили в жизнь с ювелирной точностью.
Отзывы из 2гис
4.9
42 отзывов
Дополнительные услуги 88%
2 154 оценок
Комплектации 89%
1 535 оценок
Планировки 90%
2 484 оценок
Проекты 93%
2 231 оценок
С
Богдана Ц.13.06.2025 г.
Я впервые занималась таким серьезным проектом, как строительство загородного дома, и очень переживала. Но ваша компания стала для меня настоящим проводником в этом деле. Все объясняли, показывали, советовали. Строители работали аккуратно и не нарушали наш привычный ритм жизни. В итоге мы получили прекрасный каркасный дом, который полностью соответствует нашим ожиданиям.


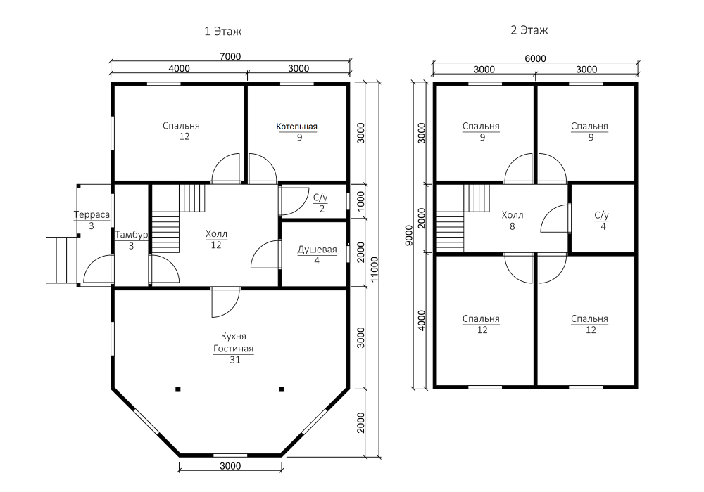
Проект №65 Двухэтажный Дом 7х11

каркас из строганой доски
Создайте свой план для этого проекта
и отправьте его нам на расчет в один клик.
Каркасный дом (150 мм) 7х11 Толщина утепления 150 мм 3560500 Заказать
Каркасный дом (200 мм) 7х11 Толщина утепления 200 мм 3810500 Заказать

Доставка включена в стоимость дома!

Воспользуйтесь нашим планировщиком, чтобы получить свою уникальную планировку.

С помощью планировщика можно сделать планы, схемы, эскизы, чертежи вашего будущего дома с мансардой, эркером, с несколькими спальнями. В конечном итоге вы получите проект с качественной планировкой, стопроцентно отвечающий вашим запросам.

При заказе строительства дома можно выбрать нужный вид крыши: двускатная, четырехскатная и вальмовая. Двухскатную крышу считают особенно популярной у малометражных построек.

Самые востребованные размеры на текущий момент: мини - до 50м2 (чаще всего, 1 этажные); компактные - от 70 до 100 квадратных метров (обычно двухэтажные); большие дома - начиная от 150 квадратных метров и больше.

Можем предложить дуплексы - большие каркасные постройки с 2-мя входами на несколько семей. Дома предполагаются для нескольких хозяев и разделены на две половины, для обоих половин - свой отдельный вход.


Наши работы

Перейти в галерею


Комплектация

Площадь застройки: 69 м2
Длина: 11 м
Ширина: 7 м
Общая площадь: 127 м2
Исполнение Под ключ (с отделкой)
Фундамент Свайно-винтовой или ж/б сваи (рассчитываются отдельно).
Гидроизоляция фундамента Рубероид в два слоя.
Основание (обвязка) Из обрезного бруса 150х150 мм. 150х200 мм. согласно выбранной толщине утепления. Торцевая доска строганая 45х145/45х195+/-5 мм. согласно выбранной толщине утепления. Обработка антисептиком.
Цокольное перекрытие Строганая доска камерной сушки 45х145/45х195+/-5 мм. с шагом 590 мм. Обработка антисептиком.
Пол черновой Обрезная доска камерной сушки 20х100 мм.
Влаго-ветрозащита чернового пола Мембрана Ондутис А100.
Внешние стены Стойки каркаса из строганой доски камерной сушки 45х145/45х195+/-5 мм. с шагом 590 мм. Верхняя двойная и нижняя обвязки из строганой доски камерной сушки 45х145/45х195+/-5 мм. Разгрузочный ригель из строганой доски 45х145+/-5 мм. Укосины из строганой доски 20х95 мм.
Перегородки Стойки каркаса из строганой доски камерной сушки 45х95+/-5 мм. с шагом 590 мм. Верхняя двойная и нижняя обвязки из строганой доски 45х95+/-5 мм. Разгрузочный ригель из строганой доски камерной сушки 45х145+/-5 мм. Укосины из строганой доски камерной сушки 20х95 мм.
Сборка каркаса На гвозди.
Высота от пола до потолка Дом одноэтажный: 2,5 м. Дом с мансардой: 1-ый этаж- 2,5 м.
2-ой этаж (мансарда)- 2,3 м.
Дом в полтора и два этажа:
1-ый этаж 2,5 м.
2-ой этаж 2,4 м. в полутораэтажном доме
2,5 м. в двухэтажном доме.
Внешняя отделка стен Имитация бруса камерной сушки, сорт АВ, толщиной 17 мм. Монтаж через строганый брусок камерной сушки 45х45+/-5 мм. (вентилируемый фасад). Влаго-ветрозащитная мембрана- Ондутис А100.
Внутренняя отделка стен, перегородок Евровагонка камерной сушки, сорт АВ, толщиной 12,5 мм. по строганой рейке 20х40+/-5 мм. либо ГКЛ 12,5 мм.
Отделка потолка Евровагонка камерной сушки, сорт АВ толщиной, 12,5 мм. по строганой рейке 20х40+/-5 мм. либо ГКЛ 12,5 мм.
Пол чистовой Шпунтованная доска камерной сушки толщиной 35-36 мм. сорт АВ. по строганой рейке 20х40+/-5 мм. либо шпунтованная ДСП 16 мм. по разряженной обрешётке из строганой доски камерной сушки 20х95+/-5 мм.
Утепление (пол, потолок) Минеральная вата Knauf 150/200 мм. согласно выбранной толщине утепления.
Утепление стен Плитный утеплитель Rockwool, толщиной 150/200 мм. согласно выбранной толщине утепления.
Звукоизоляция перегородок Плитный утеплитель Rockwool, толщиной 100 мм.
Пароизоляция (стены, перегородки, пол, потолок) Плёнка Ондутис R70. Дополнительная герметизация нахлёстов/примыканий пароизоляционной плёнки клейкой лентой Delta.
Окна Двухкамерные стеклопакеты ПВХ белого цвета, профиль 60 мм. В комплекте: отливы, подоконники, москитные сетки.
Двери Входная- металлическая, утеплённая (Россия). Межкомнатные- филёнчатые.
Наличники на окна и двери Наличник деревянный, строганый, камерной сушки 70-90 мм. с двух сторон.
Лестница (при наличии второго этажа) Деревянная, одно или двухмаршевая. Перила- заводские резные, балясины- заводские точеные, устанавливаются стартовые точёные столбы. Ступени 40х200 мм. Тетива лестницы- 90х140 мм.
Крыша Двускатная, ломаная или вальмовая в соответствии с проектом.
Стропильная система Выполнена из строганой доски камерной сушки 45х145/45х195+/-5 мм. Шаг установки стропил 590 мм.
Обрешётка Выполняется из строганой доски камерной сушки толщиной 20х95+/-5 мм. Шаг крепления обрешетки 350 мм. Контробрешётка выполняется из строганого бруска камерной сушки 45х45+/-5 мм. Крепится по стропилам (вентиляционный зазор).
Подкровельная мембрана Ондутис А100
Кровельное покрытие (на выбор) Металлочерепица 0,45 мм. Цвет на выбор.
Фронтоны (при наличии) Каркас из строганой доски камерной сушки 45х145/45х195+/-5 мм. Обшиваются имитацией бруса камерной сушки, сорт АВ, толщиной 17 мм. Монтаж через строганый брусок камерной сушки 45х45+/-5 мм. (вентилируемый фасад). Влаго-ветрозащитная мембрана- Ондутис А100. Монтаж вентиляционных решёток.
Свесы крыши Ширина 400 мм. Подшиваются вагонкой камерной сушки, сорт АВ.
Терраса/балкон (при наличии) Устанавливаются опорные столбы из строганного бруса камерной сушки 140х140 мм.
Отделка потолка террасы/балкона Евровагонка камерной сушки толщиной 12,5 мм. сорт АВ.
Пол террасы/балкона Шпунтованная доска камерной сушки толщиной 35-36 мм. сорт АВ.
Ограждение террасы/балкона Перила- строганая доска. Балясины- точеные, фигурные. Либо ограждение в скандинавском стиле. Устанавливаются ступени у входа.
Допуск на геометрические параметры Составляет +/- 50 мм по длине с каждой стороны.
Допускается стыковка имитации бруса, вагонки и половой доски По всему периметру стен дома (если ширина и длина дома более 6,0 метров). Вагонки и доски пола в каждой отдельной комнате.
Допуски по имитации бруса, вагонке, доске +/- 5 мм.
В стоимость включена Доставка комплекта материала в радиусе 500 км. от г. Пестова Новгородской области и сборка дома на вашем участке.
Гарантия 5 лет.
Бытовка строительная 2,0х3,0 м. каркасно-щитовая. Стоимость 23000 руб. Остаётся на участке Заказчика.
Туалет 1,0х1,0 м. каркасно-щитовой. Стоимость 12000 руб. Остаётся на участке Заказчика.
Генератор Стоимость аренды на весь срок строительства 15000 руб. ГСМ за счёт Заказчика.

Строительство домов выполняется в нескольких видах: под усадку, когда сруб отстаивается в течение определенного времени и сразу под ключ.

В зимнее время лучше строить дома в мороз, чтобы каркас не отсырел, в летний сезон - не под дождем.

Оптимальными для дачи или сада стали дома на винтовых сваях, в нашем онлайн-каталоге вы увидите одноэтажные и полуторатажные дома.

Если дом будет строиться для проживания круглый год, предлагаем теплые коттеджи и дома на плитном и ленточном фундаменте.

Существует два вида утепления: 200 мм и 150 мм. Каркасные дома с толщиной стен 200 мм получаются теплее, но стоят дороже.

Дополнительные услуги


Каркасник эркером, согласно чертежу 65 полутораэтажный с теплоизоляционной двускатной верхней конструкцией здания, запоминается экологической безопасностью, в связи с использованием стружечных плит, ваты минеральной и базальтовой, что создает замечательную защиту от холода, оптимальный микроклимат в помещении. Размеры жилища составляют 7х11 м., общая жилая площадь - 127 кв.м.. Наша организация в минимальные сроки создаст для вас каркасный дом по индивидуальному или типовому проекту в Ростове-на-Дону в любое время года и на любом виде грунта.

Популярные проекты


Дома из бруса с верандой Дома из бруса 6х6 Каркасные дома 6х6
хит продаж
Тип:
Общая площадь: 2
3339500
от 3180500
хит продаж
Тип: с балконом, с маленькой террасой
Общая площадь: 2
1932500
от 1840500
хит продаж
Тип: с маленькой террасой
Общая площадь: 2
2153000
от 2050500
Дома из бруса

Заказать или задать вопрос



Заказать или задать вопрос

Заказать звонок