Проект №81 Каркасный дом 11х9

каркас из строганой доски
Создайте свой план для этого проекта
и отправьте его нам на расчет в один клик.
Каркасный дом (150 мм) 9х11 Толщина утепления 150 мм 3410500 Заказать
Каркасный дом (200 мм) 9х11 Толщина утепления 200 мм 3710500 Заказать

Доставка включена в стоимость дома!

Воспользуйтесь нашим планировщиком, чтобы получить свою уникальную планировку.

С помощью планировщика можно сделать планы, схемы, эскизы, чертежи вашего будущего дома с мансардой, эркером, с несколькими спальнями. В конечном итоге вы получите проект с качественной планировкой, стопроцентно отвечающий вашим запросам.

При заказе строительства дома можно выбрать нужный вид крыши: двускатная, четырехскатная и вальмовая. Двухскатную крышу считают особенно популярной у малометражных построек.

Самые востребованные размеры на текущий момент: мини - до 50м2 (чаще всего, 1 этажные); компактные - от 70 до 100 квадратных метров (обычно двухэтажные); большие дома - начиная от 150 квадратных метров и больше.

Можем предложить дуплексы - большие каркасные постройки с 2-мя входами на несколько семей. Дома предполагаются для нескольких хозяев и разделены на две половины, для обоих половин - свой отдельный вход.


Наши работы

Перейти в галерею


Комплектация

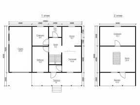
Площадь застройки: 99 м2
Длина: 11 м
Ширина: 9 м
Общая площадь: 115 м2
Исполнение Под ключ (с отделкой)
Фундамент Свайно-винтовой или ж/б сваи (рассчитываются отдельно).
Гидроизоляция фундамента Рубероид в два слоя.
Основание (обвязка) Из обрезного бруса 150х150 мм. 150х200 мм. согласно выбранной толщине утепления. Торцевая доска строганая 45х145/45х195+/-5 мм. согласно выбранной толщине утепления. Обработка антисептиком.
Цокольное перекрытие Строганая доска камерной сушки 45х145/45х195+/-5 мм. с шагом 590 мм. Обработка антисептиком.
Пол черновой Обрезная доска камерной сушки 20х100 мм.
Влаго-ветрозащита чернового пола Мембрана Ондутис А100.
Внешние стены Стойки каркаса из строганой доски камерной сушки 45х145/45х195+/-5 мм. с шагом 590 мм. Верхняя двойная и нижняя обвязки из строганой доски камерной сушки 45х145/45х195+/-5 мм. Разгрузочный ригель из строганой доски 45х145+/-5 мм. Укосины из строганой доски 20х95 мм.
Перегородки Стойки каркаса из строганой доски камерной сушки 45х95+/-5 мм. с шагом 590 мм. Верхняя двойная и нижняя обвязки из строганой доски 45х95+/-5 мм. Разгрузочный ригель из строганой доски камерной сушки 45х145+/-5 мм. Укосины из строганой доски камерной сушки 20х95 мм.
Сборка каркаса На гвозди.
Высота от пола до потолка Дом одноэтажный: 2,5 м. Дом с мансардой: 1-ый этаж- 2,5 м.
2-ой этаж (мансарда)- 2,3 м.
Дом в полтора и два этажа:
1-ый этаж 2,5 м.
2-ой этаж 2,4 м. в полутораэтажном доме
2,5 м. в двухэтажном доме.
Внешняя отделка стен Имитация бруса камерной сушки, сорт АВ, толщиной 17 мм. Монтаж через строганый брусок камерной сушки 45х45+/-5 мм. (вентилируемый фасад). Влаго-ветрозащитная мембрана- Ондутис А100.
Внутренняя отделка стен, перегородок Евровагонка камерной сушки, сорт АВ, толщиной 12,5 мм. по строганой рейке 20х40+/-5 мм. либо ГКЛ 12,5 мм.
Отделка потолка Евровагонка камерной сушки, сорт АВ толщиной, 12,5 мм. по строганой рейке 20х40+/-5 мм. либо ГКЛ 12,5 мм.
Пол чистовой Шпунтованная доска камерной сушки толщиной 35-36 мм. сорт АВ. по строганой рейке 20х40+/-5 мм. либо шпунтованная ДСП 16 мм. по разряженной обрешётке из строганой доски камерной сушки 20х95+/-5 мм.
Утепление (пол, потолок) Минеральная вата Knauf 150/200 мм. согласно выбранной толщине утепления.
Утепление стен Плитный утеплитель Rockwool, толщиной 150/200 мм. согласно выбранной толщине утепления.
Звукоизоляция перегородок Плитный утеплитель Rockwool, толщиной 100 мм.
Пароизоляция (стены, перегородки, пол, потолок) Плёнка Ондутис R70. Дополнительная герметизация нахлёстов/примыканий пароизоляционной плёнки клейкой лентой Delta.
Окна Двухкамерные стеклопакеты ПВХ белого цвета, профиль 60 мм. В комплекте: отливы, подоконники, москитные сетки.
Двери Входная- металлическая, утеплённая (Россия). Межкомнатные- филёнчатые.
Наличники на окна и двери Наличник деревянный, строганый, камерной сушки 70-90 мм. с двух сторон.
Лестница (при наличии второго этажа) Деревянная, одно или двухмаршевая. Перила- заводские резные, балясины- заводские точеные, устанавливаются стартовые точёные столбы. Ступени 40х200 мм. Тетива лестницы- 90х140 мм.
Крыша Двускатная, ломаная или вальмовая в соответствии с проектом.
Стропильная система Выполнена из строганой доски камерной сушки 45х145/45х195+/-5 мм. Шаг установки стропил 590 мм.
Обрешётка Выполняется из строганой доски камерной сушки толщиной 20х95+/-5 мм. Шаг крепления обрешетки 350 мм. Контробрешётка выполняется из строганого бруска камерной сушки 45х45+/-5 мм. Крепится по стропилам (вентиляционный зазор).
Подкровельная мембрана Ондутис А100
Кровельное покрытие (на выбор) Металлочерепица 0,45 мм. Цвет на выбор.
Фронтоны (при наличии) Каркас из строганой доски камерной сушки 45х145/45х195+/-5 мм. Обшиваются имитацией бруса камерной сушки, сорт АВ, толщиной 17 мм. Монтаж через строганый брусок камерной сушки 45х45+/-5 мм. (вентилируемый фасад). Влаго-ветрозащитная мембрана- Ондутис А100. Монтаж вентиляционных решёток.
Свесы крыши Ширина 400 мм. Подшиваются вагонкой камерной сушки, сорт АВ.
Терраса/балкон (при наличии) Устанавливаются опорные столбы из строганного бруса камерной сушки 140х140 мм.
Отделка потолка террасы/балкона Евровагонка камерной сушки толщиной 12,5 мм. сорт АВ.
Пол террасы/балкона Шпунтованная доска камерной сушки толщиной 35-36 мм. сорт АВ.
Ограждение террасы/балкона Перила- строганая доска. Балясины- точеные, фигурные. Либо ограждение в скандинавском стиле. Устанавливаются ступени у входа.
Допуск на геометрические параметры Составляет +/- 50 мм по длине с каждой стороны.
Допускается стыковка имитации бруса, вагонки и половой доски По всему периметру стен дома (если ширина и длина дома более 6,0 метров). Вагонки и доски пола в каждой отдельной комнате.
Допуски по имитации бруса, вагонке, доске +/- 5 мм.
В стоимость включена Доставка комплекта материала в радиусе 500 км. от г. Пестова Новгородской области и сборка дома на вашем участке.
Гарантия 5 лет.
Бытовка строительная 2,0х3,0 м. каркасно-щитовая. Стоимость 23000 руб. Остаётся на участке Заказчика.
Туалет 1,0х1,0 м. каркасно-щитовой. Стоимость 12000 руб. Остаётся на участке Заказчика.
Генератор Стоимость аренды на весь срок строительства 15000 руб. ГСМ за счёт Заказчика.

Строительство домов выполняется в нескольких видах: под усадку, когда сруб отстаивается в течение определенного времени и сразу под ключ.

В зимнее время лучше строить дома в мороз, чтобы каркас не отсырел, в летний сезон - не под дождем.

Оптимальными для дачи или сада стали дома на винтовых сваях, в нашем онлайн-каталоге вы увидите одноэтажные и полуторатажные дома.

Если дом будет строиться для проживания круглый год, предлагаем теплые коттеджи и дома на плитном и ленточном фундаменте.

Существует два вида утепления: 200 мм и 150 мм. Каркасные дома с толщиной стен 200 мм получаются теплее, но стоят дороже.

Дополнительные услуги


Каркасник балконом и большой террасой, согласно чертежу 81 полутораэтажный с теплоизоляционной двускатной верхней конструкцией здания, запоминается экологической безопасностью, в связи с использованием стружечных плит, ваты минеральной и базальтовой, что создает замечательную защиту от холода, оптимальный микроклимат в помещении. Размеры жилища составляют 9х11 м., общая жилая площадь - 115 кв.м.. Наша организация в минимальные сроки создаст для вас каркасный дом по индивидуальному или типовому проекту в Ростове-на-Дону в любое время года и на любом виде грунта.

Популярные проекты


Каркасные дома 4х10 Маленькие дома из бруса Бани из бруса с террасой
хит продаж
Тип:
Общая площадь: 2
1922000
от 1830500
хит продаж
Тип: с маленькой террасой
Общая площадь: 2
2153000
от 2050500
хит продаж
Тип: с террасой
Общая площадь: 2
2226500
от 2120500
Дома из бруса

Заказать или задать вопрос




Отзывы наших клиентов

Огромная благодарность коллективу "Брус дома" за нашу прекрасную баню — строительство велось оперативно и аккуратно, без единой заминки, и теперь мы наслаждаемся легким паром в идеально сложенном помещении.

Божена Ч.
29.07.2025


По прошествии нескольких месяцев после новоселья я по-прежнему в восторге от своего выбора и от работы компании Брус дома, которая подарила мне и моей семье прекрасное место для отдыха и единения с природой без лишних хлопот и заоблачных затрат, огромное вам спасибо.

Вячеслав Пекарев
12.05.2025


Я впервые столкнулась со строительством и очень боялась, но мои опасения были напрасны. Менеджер компании терпеливо отвечал на все, даже самые глупые вопросы, а прораб ежедневно присылал фотоотчеты о ходе работ. Построили нам каркасный дом, и я чувствую себя в нем абсолютно счастливой.

Эльвира Коваленко
18.03.2025


Заказать или задать вопрос

Заказать звонок

Напишите нам
Здравствуйте! Отправьте нам вопрос или заявку в WhatsApp