Дома под ключ в Ростове-на-Дону
Отзывы из Яндекс Карт
4.9
92 отзывов
Дополнительные услуги 88%
2 154 оценок
Комплектации 89%
1 535 оценок
Планировки 90%
2 484 оценок
Проекты 93%
2 231 оценок
С
Антон Климов30.04.2026 г.
В итоге выбрал «БрусДома» для дома 5х7,5 с террасой и эркером после того, как пересмотрел три конторы. У них адекватные цены и нормальные сроки. Построили за два месяца, правда, черепицу на крыше уложили с небольшим смещением ряда, я не стал переделывать.
С
Герасим01.09.2025 г.
Первое, что отметил, это культура производства у строителей. На участке всегда был порядок, инструмент аккуратно сложен, материалы под пленкой. Работали с раннего утра и до вечера, видна настоящая дисциплина и любовь к своему делу, браво.
Отзывы из Google Карт
4.8
55 отзывов
Дополнительные услуги 88%
2 154 оценок
Комплектации 89%
1 535 оценок
Планировки 90%
2 484 оценок
Проекты 93%
2 231 оценок
С
Эльвира Мешкова30.03.2026 г.
Даже не знала, что бывает такое аккуратное остекление на веранде — у нас дом 5х10 с верандой и печкой, октябрь уже, а на веранде тепло сидеть даже без обогрева.
С
Боря Гаврилов14.03.2025 г.
Баня получилась на загляденье — просторная, с правильно организованной печной зоной и продуманной вентиляцией, что позволяет наслаждаться парением в максимально комфортных и безопасных условиях.
Отзывы из 2гис
4.9
42 отзывов
Дополнительные услуги 88%
2 154 оценок
Комплектации 89%
1 535 оценок
Планировки 90%
2 484 оценок
Проекты 93%
2 231 оценок
С
Тарас Петров19.05.2026 г.
Баня 6х6 с террасой и сауной раздельной — уже год топлю, нареканий почти нет. Углы чуть промерзали первый месяц, потом разошлось. Конопатки им тогда же делали, сейчас держит тепло.
С
Эшли Леонтьева27.02.2026 г.
Пока строился наш дом 6,5х6,5 с мансардой, я успела родить второго. Ребята подстроились под мои больничные, переносили работы. Результатом горжусь, но внутри черепицу уложили с небольшими зазорами — сама потом герметиком прошлась.
С
Феликс Чижов07.01.2026 г.
Отличная шумоизоляция у каркасного дома, что они мне построили. Рядом дорога, а внутри почти не слышно. Видно, хорошо утеплили стены, не только минватой, но и дополнительными мембранами.
С
Денис Ф.05.05.2025 г.
Отличная компания которая строит качественно и в срок я заказывал у них строительство бани под ключ и остался очень доволен ценой и скоростью выполнения работ ребята приехали точно в оговоренный день и работали без перерывов и выходных чтобы сдать объект как можно быстрее теперь у меня на участке новая баня которой я очень горжусь.


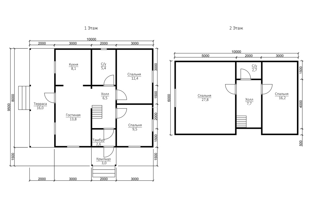
Проект №109 Каркасный дом для большой семьи 8х10 с террасой

каркас из строганой доски
Создайте свой план для этого проекта
и отправьте его нам на расчет в один клик.
Каркасный дом (150 мм) 8х10 Толщина утепления 150 мм 3290500 Заказать
Каркасный дом (200 мм) 8х10 Толщина утепления 200 мм 3570500 Заказать

Доставка включена в стоимость дома!

Воспользуйтесь нашим планировщиком, чтобы получить свою уникальную планировку.

С помощью планировщика можно сделать планы, схемы, эскизы, чертежи вашего будущего дома с мансардой, эркером, с несколькими спальнями. В конечном итоге вы получите проект с качественной планировкой, стопроцентно отвечающий вашим запросам.

При заказе строительства дома можно выбрать нужный вид крыши: двускатная, четырехскатная и вальмовая. Двухскатную крышу считают особенно популярной у малометражных построек.

Самые востребованные размеры на текущий момент: мини - до 50м2 (чаще всего, 1 этажные); компактные - от 70 до 100 квадратных метров (обычно двухэтажные); большие дома - начиная от 150 квадратных метров и больше.

Можем предложить дуплексы - большие каркасные постройки с 2-мя входами на несколько семей. Дома предполагаются для нескольких хозяев и разделены на две половины, для обоих половин - свой отдельный вход.


Наши работы

Перейти в галерею


Комплектация

Площадь застройки: 83 м2
Длина: 10 м
Ширина: 8 м
Общая площадь: 120 м2
Исполнение Под ключ (с отделкой)
Фундамент Свайно-винтовой или ж/б сваи (рассчитываются отдельно).
Гидроизоляция фундамента Рубероид в два слоя.
Основание (обвязка) Из обрезного бруса 150х150 мм. 150х200 мм. согласно выбранной толщине утепления. Торцевая доска строганая 45х145/45х195+/-5 мм. согласно выбранной толщине утепления. Обработка антисептиком.
Цокольное перекрытие Строганая доска камерной сушки 45х145/45х195+/-5 мм. с шагом 590 мм. Обработка антисептиком.
Пол черновой Обрезная доска камерной сушки 20х100 мм.
Влаго-ветрозащита чернового пола Мембрана Ондутис А100.
Внешние стены Стойки каркаса из строганой доски камерной сушки 45х145/45х195+/-5 мм. с шагом 590 мм. Верхняя двойная и нижняя обвязки из строганой доски камерной сушки 45х145/45х195+/-5 мм. Разгрузочный ригель из строганой доски 45х145+/-5 мм. Укосины из строганой доски 20х95 мм.
Перегородки Стойки каркаса из строганой доски камерной сушки 45х95+/-5 мм. с шагом 590 мм. Верхняя двойная и нижняя обвязки из строганой доски 45х95+/-5 мм. Разгрузочный ригель из строганой доски камерной сушки 45х145+/-5 мм. Укосины из строганой доски камерной сушки 20х95 мм.
Сборка каркаса На гвозди.
Высота от пола до потолка Дом одноэтажный: 2,5 м. Дом с мансардой: 1-ый этаж- 2,5 м.
2-ой этаж (мансарда)- 2,3 м.
Дом в полтора и два этажа:
1-ый этаж 2,5 м.
2-ой этаж 2,4 м. в полутораэтажном доме
2,5 м. в двухэтажном доме.
Внешняя отделка стен Имитация бруса камерной сушки, сорт АВ, толщиной 17 мм. Монтаж через строганый брусок камерной сушки 45х45+/-5 мм. (вентилируемый фасад). Влаго-ветрозащитная мембрана- Ондутис А100.
Внутренняя отделка стен, перегородок Евровагонка камерной сушки, сорт АВ, толщиной 12,5 мм. по строганой рейке 20х40+/-5 мм. либо ГКЛ 12,5 мм.
Отделка потолка Евровагонка камерной сушки, сорт АВ толщиной, 12,5 мм. по строганой рейке 20х40+/-5 мм. либо ГКЛ 12,5 мм.
Пол чистовой Шпунтованная доска камерной сушки толщиной 35-36 мм. сорт АВ. по строганой рейке 20х40+/-5 мм. либо шпунтованная ДСП 16 мм. по разряженной обрешётке из строганой доски камерной сушки 20х95+/-5 мм.
Утепление (пол, потолок) Минеральная вата Knauf 150/200 мм. согласно выбранной толщине утепления.
Утепление стен Плитный утеплитель Rockwool, толщиной 150/200 мм. согласно выбранной толщине утепления.
Звукоизоляция перегородок Плитный утеплитель Rockwool, толщиной 100 мм.
Пароизоляция (стены, перегородки, пол, потолок) Плёнка Ондутис R70. Дополнительная герметизация нахлёстов/примыканий пароизоляционной плёнки клейкой лентой Delta.
Окна Двухкамерные стеклопакеты ПВХ белого цвета, профиль 60 мм. В комплекте: отливы, подоконники, москитные сетки.
Двери Входная- металлическая, утеплённая (Россия). Межкомнатные- филёнчатые.
Наличники на окна и двери Наличник деревянный, строганый, камерной сушки 70-90 мм. с двух сторон.
Лестница (при наличии второго этажа) Деревянная, одно или двухмаршевая. Перила- заводские резные, балясины- заводские точеные, устанавливаются стартовые точёные столбы. Ступени 40х200 мм. Тетива лестницы- 90х140 мм.
Крыша Двускатная, ломаная или вальмовая в соответствии с проектом.
Стропильная система Выполнена из строганой доски камерной сушки 45х145/45х195+/-5 мм. Шаг установки стропил 590 мм.
Обрешётка Выполняется из строганой доски камерной сушки толщиной 20х95+/-5 мм. Шаг крепления обрешетки 350 мм. Контробрешётка выполняется из строганого бруска камерной сушки 45х45+/-5 мм. Крепится по стропилам (вентиляционный зазор).
Подкровельная мембрана Ондутис А100
Кровельное покрытие (на выбор) Металлочерепица 0,45 мм. Цвет на выбор.
Фронтоны (при наличии) Каркас из строганой доски камерной сушки 45х145/45х195+/-5 мм. Обшиваются имитацией бруса камерной сушки, сорт АВ, толщиной 17 мм. Монтаж через строганый брусок камерной сушки 45х45+/-5 мм. (вентилируемый фасад). Влаго-ветрозащитная мембрана- Ондутис А100. Монтаж вентиляционных решёток.
Свесы крыши Ширина 400 мм. Подшиваются вагонкой камерной сушки, сорт АВ.
Терраса/балкон (при наличии) Устанавливаются опорные столбы из строганного бруса камерной сушки 140х140 мм.
Отделка потолка террасы/балкона Евровагонка камерной сушки толщиной 12,5 мм. сорт АВ.
Пол террасы/балкона Шпунтованная доска камерной сушки толщиной 35-36 мм. сорт АВ.
Ограждение террасы/балкона Перила- строганая доска. Балясины- точеные, фигурные. Либо ограждение в скандинавском стиле. Устанавливаются ступени у входа.
Допуск на геометрические параметры Составляет +/- 50 мм по длине с каждой стороны.
Допускается стыковка имитации бруса, вагонки и половой доски По всему периметру стен дома (если ширина и длина дома более 6,0 метров). Вагонки и доски пола в каждой отдельной комнате.
Допуски по имитации бруса, вагонке, доске +/- 5 мм.
В стоимость включена Доставка комплекта материала в радиусе 500 км. от г. Пестова Новгородской области и сборка дома на вашем участке.
Гарантия 5 лет.
Бытовка строительная 2,0х3,0 м. каркасно-щитовая. Стоимость 23000 руб. Остаётся на участке Заказчика.
Туалет 1,0х1,0 м. каркасно-щитовой. Стоимость 12000 руб. Остаётся на участке Заказчика.
Генератор Стоимость аренды на весь срок строительства 15000 руб. ГСМ за счёт Заказчика.

Строительство домов выполняется в нескольких видах: под усадку, когда сруб отстаивается в течение определенного времени и сразу под ключ.

В зимнее время лучше строить дома в мороз, чтобы каркас не отсырел, в летний сезон - не под дождем.

Оптимальными для дачи или сада стали дома на винтовых сваях, в нашем онлайн-каталоге вы увидите одноэтажные и полуторатажные дома.

Если дом будет строиться для проживания круглый год, предлагаем теплые коттеджи и дома на плитном и ленточном фундаменте.

Существует два вида утепления: 200 мм и 150 мм. Каркасные дома с толщиной стен 200 мм получаются теплее, но стоят дороже.

Дополнительные услуги


Каркасник большой террасой, согласно чертежу 109 полутораэтажный с теплоизоляционной двускатной верхней конструкцией здания, запоминается экологической безопасностью, в связи с использованием стружечных плит, ваты минеральной и базальтовой, что создает замечательную защиту от холода, оптимальный микроклимат в помещении. Размеры жилища составляют 8х10 м., общая жилая площадь - 120 кв.м.. Наша организация в минимальные сроки создаст для вас каркасный дом по индивидуальному или типовому проекту в Ростове-на-Дону в любое время года и на любом виде грунта.

Популярные проекты


Дома из бруса 7х9 Маленькие дома из бруса Каркасные дома с балконом
хит продаж
Тип: с балконом, с маленькой террасой
Общая площадь: 2
1859000
от 1770500
хит продаж
Тип: с большой террасой
Общая площадь: 2
3444500
от 3280500
хит продаж
Тип: с террасой
Общая площадь: 2
2195000
от 2090500
Дома из бруса

Заказать или задать вопрос



Заказать или задать вопрос

Заказать звонок